59. sesja Rady Miasta Poznania

Rada Miasta Poznania na wtorkowym posiedzeniu przyjęła stanowisko w sprawie konfliktu rosyjsko-ukraińskiego. Radni przekazali słowa wsparcia dla mieszkańców Charkowa, który jest miastem partnerskim Poznania. Na 59. sesji radni zapoznali się z raportami o stanie bezpieczeństwa w mieście w 2021, przyjęli też ustawy ws. miejscowych planów i programów naprawczych miejskich jednostek ochrony zdrowia.

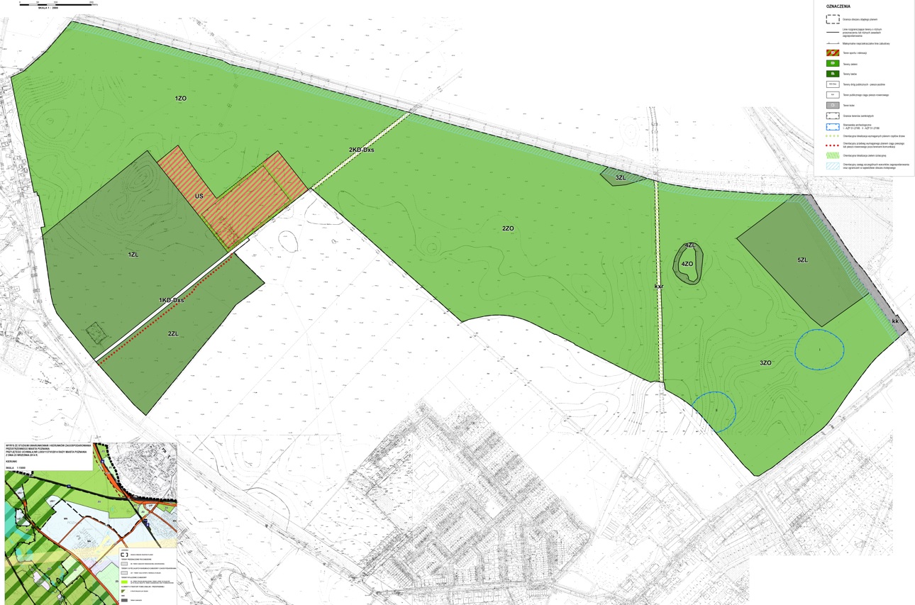
Załącznik do uchwały ws. miejscowego planu zagospodarowania przestrzennego "Strzeszyn Północ" - część D w Poznaniu, fot. MPU - grafika artykułu
Załącznik do uchwały ws. miejscowego planu zagospodarowania przestrzennego "Strzeszyn Północ" - część D w Poznaniu, fot. MPU

Stanowisko w sprawie napiętej sytuacji między Ukrainą i Rosją przygotowali wspólnie radni klubu Koalicji Obywatelskiej i Prawa i Sprawiedliwości. Czytamy w nim m.in.: "Rada Miasta Poznania z niepokojem śledzi wzrastającą presję Federacji Rosyjskiej wywieraną na Państwo Ukraińskie. Nasze największe obawy budzi gromadzenie ponad 100-tysięcznej armii i znacznej ilości sprzętu wojskowego na granicy z Ukrainą./.../ Rosja głosami swoich przedstawicieli domaga się nowego porządku europejskiego, w którym Ukraina ma się stać jej państwem wasalnym, a kraje wschodniej flanki NATO mają zostać pozbawione sojuszniczej ochrony. Na takie, wyrażane wprost, naruszanie zasad ONZ nie może być zgody".

Radni zaznaczyli, że pamiętają o tym, że miastem partnerskim Poznania jest Charków i oświadczyli "Słowa szczególnego wsparcia i solidarności kierujemy do mieszkanek i mieszkańców, znajdującego się przy granicy z Rosją Charkowa, z którymi łączy nas wiele lat partnerskiej współpracy naszych miast". Radni KO i PiS zagłosowali za przyjęciem stanowiska, radni klubu Wspólny Poznań wstrzymali się od głosu, wskazując wcześniej, że Rada Miasta Poznania nie ma prawa zajmować się polityką międzynarodową.

Sprawozdanie z działalności Straży Miejskiej Miasta Poznania złożył jej komendant Waldemar Matuszewski. Powiedział, że obecnie w Poznaniu jest zatrudnionych 315 strażników miejskich. Z pracy odeszło 31 osób, a przyszło 22 nowych pracowników. 42 proc. zatrudnionych w SMMP to kobiety. SMMP przyjęła w 2021 roku 76 tys. zgłoszeń, 45 tysięcy dotyczyło ruchu drogowego, 8 tysięcy zwierząt, 6,5 tysiąca czystości i porządku, a 3,5 tysiąca ochrony środowiska, w tym spalania odpadów. Strażnicy miejscy wystawili w 2021 roku 53 tysiące mandatów, ma kwotę 5,5 mln zł. Skierowali 3,2 tys. wniosków do sądu. Więcej na ten temat - tutaj.

Kolejny raport o stanie bezpieczeństwa w ubiegłym roku złożył st. brygadier Jacek Michalak, komendant miejski Państwowej Straży Pożarnej w Poznaniu. Straż pożarna odnotowała 11,3 tysięcy zdarzeń, z czego w Poznaniu - 5984 (spadek o 14 proc.) Było 7537 interwencji, a wyjazdy do akcji odbywały co 46 minut. Doszło do 1914 pożarów, w Poznaniu było 7 ofiar śmiertelnych pożarów, a 32 osoby zostały ranne. Oprócz działań-ratowniczo gaśniczych straż pożarna zajmuje się też edukacją w zakresie bezpieczeństwa pożarowego. Zajęcia na ten temat adresowane są przede wszystkim o dzieci.

Jacek Michalak powiedział, że na rok 2022 planowane jest utworzenie "escape roomu", czyli pokoju ucieczek, w którym dzieci będą poznawać poprawne zachowania w sytuacji zagrożenia pożarem. Będzie to pierwszy "strażacki" escape room w Polsce. Komendant miejski straży pożarnej podziękował miastu za wsparcie finansowe. Za przekazane środki kupiono specjalistyczny samochód i uzupełniono sprzęt ratunkowo-gaśniczy.

W kolejnym punkcie radni zapoznali się z projektem uchwały w sprawie miejscowego planu obszaru "Morasko - Radojewo - Umultowo" dla terenu w rejonie ulic Morasko i F. Jaśkowiaka. Miasto przystąpiło do sporządzania planu dla tego terenu, po tym, jak - bez wymaganych zgód i pozwoleń - wyburzono tamtejszy kościół. Sprawa została zgłoszona do prokuratury, ale ta sprawę umorzyła. By jednak zapobiec niekontrolowanej zabudowie terenu, w tym niepożądanej w tym rejonie funkcji usług handlu - obiektu handlowego o powierzchni sprzedaży poniżej 2000 m kw, podjęto prace nad miejscowym planem. Po wyłożeniu planu do wglądu publicznego nie wpłynęła do niego żadna uwaga. Zarząd Osiedla Morasko-Radojewo zaopiniował projekt planu pozytywnie.

Następnym projektem planu dotyczył zagospodarowania przestrzennego rejonu "Strzeszyn Północ" - część D w Poznaniu. Obszar objęty opracowaniem zajmuje powierzchnię około 142,5 ha. Położony jest w północnej części Poznania, na Strzeszynie, w rejonie ulic Koszalińskiej, Wałeckiej, Jastrowskiej, Biskupińskiej oraz linii kolejowej nr 395 Zieliniec - Kiekrz. Przyjęcie uchwały ws. planu pozwoli na ochronę terenów niezabudowanych, umożliwi powiększenie terenów sportowo-rekreacyjnych oraz regulację układu komunikacyjnego. W obszarze obowiązywania planu teren wyłączony z zabudowy, ma być przeznaczony na zieleń nieurządzoną, tereny leśne i do zalesień. Po wyłożeniu planu do wglądu zgłoszono do niego uwagi, zgłoszono wniosek o przeznaczenie terenu pod budownictwo mieszkaniowe, inny wnioskodawca proponował przeznaczenie terenu pod budowę eksperymentalnej przetwórni biomasy i odpadów. Miasto odrzuciło te propozycje. Więcej na ten temat - tutaj.

Radni przyjęli też uchwałę zmieniającą uchwałę w sprawie utworzenia "Parku Kulturowego Stare Miasto" w Poznaniu. Dodano w niej kilka nowych zapisów m.in. dotyczących zasad umieszczania plakatów zapowiadających wydarzenia kulturalne. Jednak najważniejszą zmianą było wprowadzenie zapisów uniemożliwiających "działalność erotyczną", czyli prowadzenie na terenie Starego Miasta klubów go-go. Zapisy uchwały nie są sprzeczne z ustawą o swobodzie działalności gospodarczej, a podobne zapisy przyjęto także w innych polskich miastach. Więcej na ten temat - tutaj.

Dyrektorzy miejskich placówek medycznych: Poznańskiego Ośrodka Specjalistycznych Usług Medycznych i Szpitala im. F. Raszei przedstawili Radzie plany naprawcze. Musiały one powstać ze względu na wykazaną przez te placówki stratę netto. Prezentacja planów naprawczych odbyła się wcześniej na posiedzeniu Komisji Rodziny, Polityki Społecznej i Zdrowia (pisaliśmy o tym tutaj).

Radni zaakceptowali wieloletni program naprawczy przedstawiony przez nowego dyrektora POSUM - Konrada Zaradnego, do niedawna radnego RMP. Plan zakłada m.in. przekształcenie POSUM w spółkę. W kolejnym punkcie radni przyjęli także jednoroczny program naprawczy dla Szpitala im. Raszei, który szuka dodatkowych wpływów m.in. zdobywając wyższe i nowe kontrakty na usługi medyczne i zawierając umowy z NFZ.

Radni zapoznali się także  z projektem uchwały ws. zamiaru połączenia samorządowych instytucji kultury: Teatru Ósmego Dnia w Poznaniu i Estrady Poznańskiej w jedną instytucję. Jak napisano w uzasadnieniu, cele i zadania obu instytucji są ze sobą komplementarne. Zmiana struktury pozwoli na dokładniejsze rozpoznawanie potrzeb publiczności. Oczekiwanym skutkiem połączenia  instytucji jest zmniejszenie kosztów administracyjnych, co przyczyni się do zwiększenia środków przeznaczonych na działalność merytoryczną. Więcej na ten temat - tutaj. Racjonalizacja kosztów obejmie m.in. księgowość instytucji. Powstały w wyniku połączenia podmiot ma szansę otworzyć się na nową publiczność i poszerzyć swój zakres oddziaływania. Uchwała o połączeniu obu instytucji będzie głosowana po upływie trzech miesięcy od przyjęcia uchwały intencyjnej. Ma to nastąpić w lipcu 2022 roku. Nikt z pracowników nie straci pracy, a nowa instytucja będzie miała nazwę Estrada Poznańska. W Teatrze zatrudnionych jest 13 osób, a w Estradzie 48 osób.

W bloku uchwał nazewniczych Rada przyjęła cztery uchwały: pierwsza z nich pozwoli na nazwanie ulicy Choszczeńskiej. Ulice w tej okolicy mają nazwy pochodzące od nazw miejscowości północno-zachodniej Polski, takie jak Łobeska (Łobez), Mirosławiecka (Mirosławiec). Proponowana nazwa pochodzi od nazwy miasta Choszczno. Kolejna uchwała pozwoli na przedłużenie ulicy Czesława Niemena. Następna przewiduje nazwanie imieniem ks. Stanisława Kałka ronda u zbiegu ulic Piwnej, Stalowej i Kobylepole, a ostatnia z przyjętych na wtorkowej sesji - nadanie nazwy Rodziny Stablewskich parkowi położonemu w rejonie ulic Browarnej, Ludosławy i Chociebora.

W popołudniowej części sesji Rada przyjęła dwie uchwały "targowiskowe". Pierwsza przewiduje uznanie zadań wykonywanych przez spółkę "Targowiska" za usługę świadczoną w ogólnym interesie gospodarczym. "Targowiska" zarządzają obecnie ośmioma targowiskami położonymi na nieruchomościach miejskich. Wzrost kosztów działalności gospodarczej powoduje konieczność podwyższania przez spółkę opłat dla handlujących.

Miasto nie chce by Targowiska podwyższały opłaty targowiskowe, a sprzedawcy z nich zniknęli, chce natomiast zapewnić mieszkańcom dostęp do towarów sprzedawanych na rynkach: warzyw czy owoców. W myśl uchwały Miasto uznało działalność spółki za usługę świadczoną w ogólnym interesie gospodarczym, dzięki czemu będzie mogła ją wspierać z budżetu miasta. Jedną z form wsparcia będzie przekazanie spółce prawa własności używanych na rynkach stołów, ław i podestów. W tej sprawie radni przyjęli osobną uchwałę.

Radni nie przyjęli uchwały, zatem nie zaakceptowali protokołu kontroli Komisji Rewizyjnej Rady Miasta Poznania z kontroli zasad i kryteriów przyznawania środków na cele remontowe w placówkach oświatowych. Po długiej i emocjonującej dyskusji odesłali do ponownego rozpatrzenia w komisji projekt uchwały w sprawie skargi na dyrektora Młodzieżowego Domu Kultury nr 1.

opr. SZYM

Zobacz więcej: