Grzebowisko dla zwierząt i Fort VI

Komisja Polityki Przestrzennej i Rewitalizacji na środowym posiedzeniu opiniowała cztery projekty uchwał. Dwie z nich otwierają drogę do sporządzenia miejscowych planów, dwie kolejne to uchwały ws. planów już opracowanych.

Mapa z zarysem fortu głównego w kolorze zielonym, w części fort okala teren zieleni, który będzie chroniony - grafika artykułu
Projekt miejscowego planu dla rejonu "Podolany Południe - część B" obejmującego m.in. Fort VI, fot. MPU

W pierwszym punkcie zapoznano się zapisami miejscowego planu dla terenu położonego pomiędzy ulicami Babimojską i Smardzewską na Grunwaldzie. O zmianę istniejącego planu wniósł inwestor, który chce w tym rejonie postawić budynek wielorodzinny. Pod zabudowę mieszkaniową wielorodzinna i usługowa przeznaczone ma być 3,3 ha terenu. Właściciel wniósł o obniżenie normatywu parkingowego dla jego inwestycji, bo w pobliżu jest linia tramwajowa.

Gdyby budynek był wznoszony ponad 500 metrów od przystanku komunikacji miejskiej inwestor musiałby przewidzieć 1,5 miejsca parkingowego na mieszkanie, gdy do tramwaju lub autobusu jest bliżej, normatyw może być niższy - w tym wypadku 1 miejsce. Dodatkowo inwestor wniósł w planie o ochronę rosnącej w tym rejonie alei drzewa. Komisja po wysłuchaniu rekomendacji miejskich architektów, wyjaśnień inwestora i opinii strony społecznej, wydali pozytywną opinię ws. uchwały o przystąpieniu do sporządzenia mpzp.

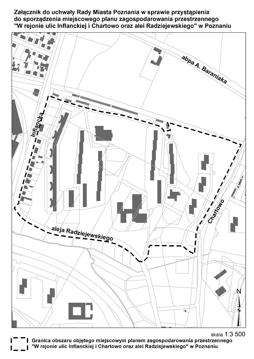
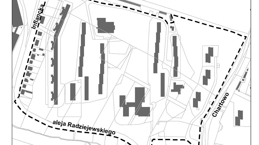
Wydano także pozytywną opinię ws. uchwały o przystąpieniu do sporządzania miejscowego planu w rejonie ulic Inflanckiej i Chartowo oraz alei Radziejewskiego. To w zasadzie plan "porządkujący" kwestie zabudowy na osiedle Tysiąclecia na Ratajach i mający je chronić przed ew. dalszą zabudową. Kilka lat temu jeden z inwestorów kupił teren w tym rejonie i zbudował blok mieszkalny między zabudowę blokową, wielorodzinną. Spółdzielnia Mieszkaniowa Osiedle Młodych i Rada Osiedla Chartowo chce przeciwdziałać kolejnym takim inwestycjom powodującym dogęszczenie osiedla nowymi budynkami. Plan uwzględni także nowy budynek, który już powstał.

W kolejnym punkcie zapoznano się z zapisami miejscowego planu pn. "Cmentarz Miłostowo - część A". Obejmuje on zadrzewiony teren przy ul. Wrzesińskiej, w pobliżu cmentarza komunalnego. Przed ponad 20 laty miasto planowało tam urządzić grzebowisko dla zwierząt, ale zanim do tego doszło, grzebanie zwierząt przestało być zadaniem własnym gminy. Obecnie opracowywany jest plan miejscowy, by utworzyć komercyjne grzebowisko dla zwierząt prowadzone przez operatora zewnętrznego, wyłonionego w konkursie przez miasto.

Teren objęty planem będzie przeznaczony do grzebania prochów zwierząt domowych, za opłatą za pochówek. Obecnie w Poznaniu, a także w bliższej i dalszej okolicy, takiego miejsca nie ma. Zadrzewiony teren przekształcono na działalność nieleśną, ale wycinka drzew nie będzie dozwolona. Pochówki mają się odbywać na terenie naturalnym, zalesionym. Na wyznaczonym terenie nie będzie można nic budować, administrator grzebowiska będzie jednak mógł wykorzystywać do celów administracyjnych i technicznych schron piechoty z XIX wieku.

Ostatni analizowanych na tym posiedzeniu plan miejscowy nosi nazwę "Podolany Południe - część B". Teren ma powierzchnię 9.9 ha i obejmuje zabudowę Fortu VI z otaczającą go zielenią. Fort i teren będą chronione przed zabudową. Jedyna możliwa inwestycja będzie polegać na adaptacji fortu na funkcję usługową, w tym hotelową. Przekształceniem fortu w hotel jest zainteresowany obecny właściciel obiektu, ale początkowo planował on inwestycję na większą skalę.

Zapisy miejscowego planu pozwolą na przebudowę fortu na kompleks hotelowo-konferencyjny, lecz bez wznoszenia dodatkowych budynków. Wokół fortu ma powstać teren zieleni urządzonej bez zabudowy. W forcie przewidziano miejsca chronione ze względu na istniejące w nich zimowiska nietoperzy. Inwestor będzie mógł stworzyć 15 miejsc postojowych dla samochodów na dziedzińcu wjazdowym do fortu. Komisja zaakceptowała decyzje prezydenta ws. uwag zgłoszonych do planu (wszystkie uwagi zostały odrzucone). Po tym rozstrzygnięciu wydano pozytywną opinię na temat projektu uchwały. Wszystkie cztery projekty uchwał trafią teraz na sesję Rady Miasta Poznania.

oprac. red.