Komunikaty

Trwa Sesja Rady Miasta Poznania!
Zobacz transmisję online z Sali Sesyjnej Urzędu Miasta

pagina

Rada Miasta Poznania

Pominąłeś menu

menu

Pięć nowych planów miejscowych

Radni Komisji Polityki Przestrzennej i Rewitalizacji zajęli się na środowym posiedzeniu pięcioma uchwałami ws. planów zagospodarowania przestrzennego. Wszystkie zaopiniowali pozytywnie.

Wizulizacja możliwej zabudowy terenu Bułgarska-Pastelowa, fot. MPU - grafika artykułu
Wizulizacja możliwej zabudowy terenu Bułgarska-Pastelowa, fot. MPU

Pierwszym punktem posiedzenia była dyskusja nad projektem uchwały w sprawie miejscowego planu zagospodarowania przestrzennego obszaru "Morasko-Radojewo-Umultowo" obejmującego klin zieleni w rejonie ulic Radojewo i Nadwarciańskiej w Poznaniu. Cały obszar jest określony jako teren zieleni i jest objęty ochroną. Znajduje się na nim jedno gospodarstwo rolne i drogi do niego prowadzące. Pozostały teren jest wyłączony z zabudowy i taki stan zostanie utrzymany. Radni zaopiniowali pozytywnie projekt uchwały ws. MPZP dla tego terenu.

Następnym dokumentem przedstawionym radnym do oceny, był plan zagospodarowania dla terenów w rejonie ulic Drewlańskiej i Umultowskiej w Poznaniu. Przed przystąpieniem do sporządzania planu Miejska Pracownia Urbanistyczna przeprowadziła ocenę stanu zieleni. Okazało się, że na tym terenie znajduje się cenne drzewo - dąb. By go chronić, urbaniści odsunęli od niego linię zabudowy. Będą chronione także inne drzewa i zieleń na tym obszarze, gdyż w jego części wytyczono strefę zieleni wysokiej. Większość terenu jest przeznaczona pod zabudowę mieszkaniową wolnostojącą i w układzie bliźniaczym. Mieszkańcy - w ramach konsultacji społecznych - zgodzili się także na zabudowę deweloperską części terenu wskazując, że pragną, by była realizowana przez jednego inwestora, by zachować spójność architektoniczną zabudowy. Wszyscy radni zaopiniowali pozytywnie projekt uchwały ws. MPZP dla tego terenu.

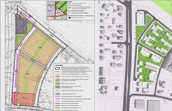
MPZP dla obszaru w rejonie ulic Pastelowej i Bułgarskiej już istnieje, ale zostanie zaktualizowany na wniosek jednej z firm działających na tym terenie. Plan obejmuje 6,7 ha i przeznaczony jest pod zabudowę mieszkaniową wielorodzinną lub usługową. Nowy plan dopuści powstanie budynków wielorodzinnych z funkcją usługową o wysokości do 21 metrów (jest ona zatem niższa od istniejących w tym rejonie budynków kompleksu Business Garden). Ośmiu radnych było "za" pozytywną opinią ws. tego planu, trzech wstrzymało się od głosu.

O zmianę MPZP "Podolany Południe - część A" w Poznaniu wystąpiła rada osiedla. Chce ona ochrony obiektów zabytkowych i terenów zieleni. Teren objęty planem ma 86 hektarów. Znajdujący się w środku Fort VI będzie objęty odrębnym planem zagospodarowania o nazwie "Podolany Południe - część B". Według zapisów planu na tym terenie będzie w przyszłości możliwa budowa linii tramwajowej, gdyż Podolany są obecnie "wykluczone komunikacyjnie", tzn. są oddalone od sieci komunikacji publicznej. Radni zaopiniowali pozytywnie uchwałę ws. planu.

Piątym punktem porządku obrad był MPZP "W rejonie ulicy Deszczowej" na Morasku przeznaczony pod zabudowę jednorodzinną mieszkaniową, z dopuszczalną zabudową usługową. W tym rejonie znajduje się także magistrala kolejowa. Miasto musiało ponownie przystąpić do sporządzania planu dla tego terenu, bo okazało się, że znajduje się tutaj wykryte i udokumentowane złoże węgla brunatnego "Naramowice", które nie było zaznaczone na wcześniejszej wersji MPZP. Według opinii wojewody, który podważył poprzedni plan, musi być zaznaczone. Przedstawiciele MPU zapewnili, że mieszkańcy okolicy nie muszą się obawiać, że węgiel brunatny z tego złoża będzie wydobywany, ale obowiązkiem miasta jest oznaczyć złoże na planie. Wszyscy radni (11) zaopiniowali pozytywnie plan zagospodarowania ul. Deszczowej.

Radni przyjęli też plan pracy komisji na rok 2021. W planie jest m.in. posiedzenie poświęcone uchwale "reklamowej" porządkującej sprawy ładu przestrzennego, a także debata na temat przyszłości Poznańskiego Węzła Kolejowego. Radny Łukasz Mikuła, przewodniczący Komisji, powiedział, że spodziewa się prezentacji projektu uchwały reklamowej już w lutym.

oprac. red.

Zobacz więcej:

Do góry